Prinses Marijkestraat 108, 5571 GP Bergeijk
Vraagprijs: € 449.000 k.k.

Brochure

Omschrijving

Halfvrijstaand woonhuis met garage gelegen op een royaal perceel van 460 m2.

Aan de Prinses Marijkestraat 108 in Bergeijk staat dit halfvrijstaande woonhuis met garage, gelegen op een royaal perceel van maar liefst 460 m². De woning bevindt zich aan de rand van de gemeente Bergeijk, in één van de meest authentieke en karaktervolle straten van het dorp. Hier woon je in een rustige, groene omgeving met volop ruimte om je heen, terwijl alle dagelijkse voorzieningen niet ver weg zijn. De royale kavel biedt tal van mogelijkheden voor tuinliefhebbers, gezinnen of iedereen die graag buiten leeft. De aanwezigheid van een garage maakt het geheel extra comfortabel. Een fijne plek voor wie op zoek is naar rust, ruimte en een sfeervolle woonomgeving met het dorpsgevoel van Bergeijk. Een woning met potentie op een mooie locatie!

Indeling
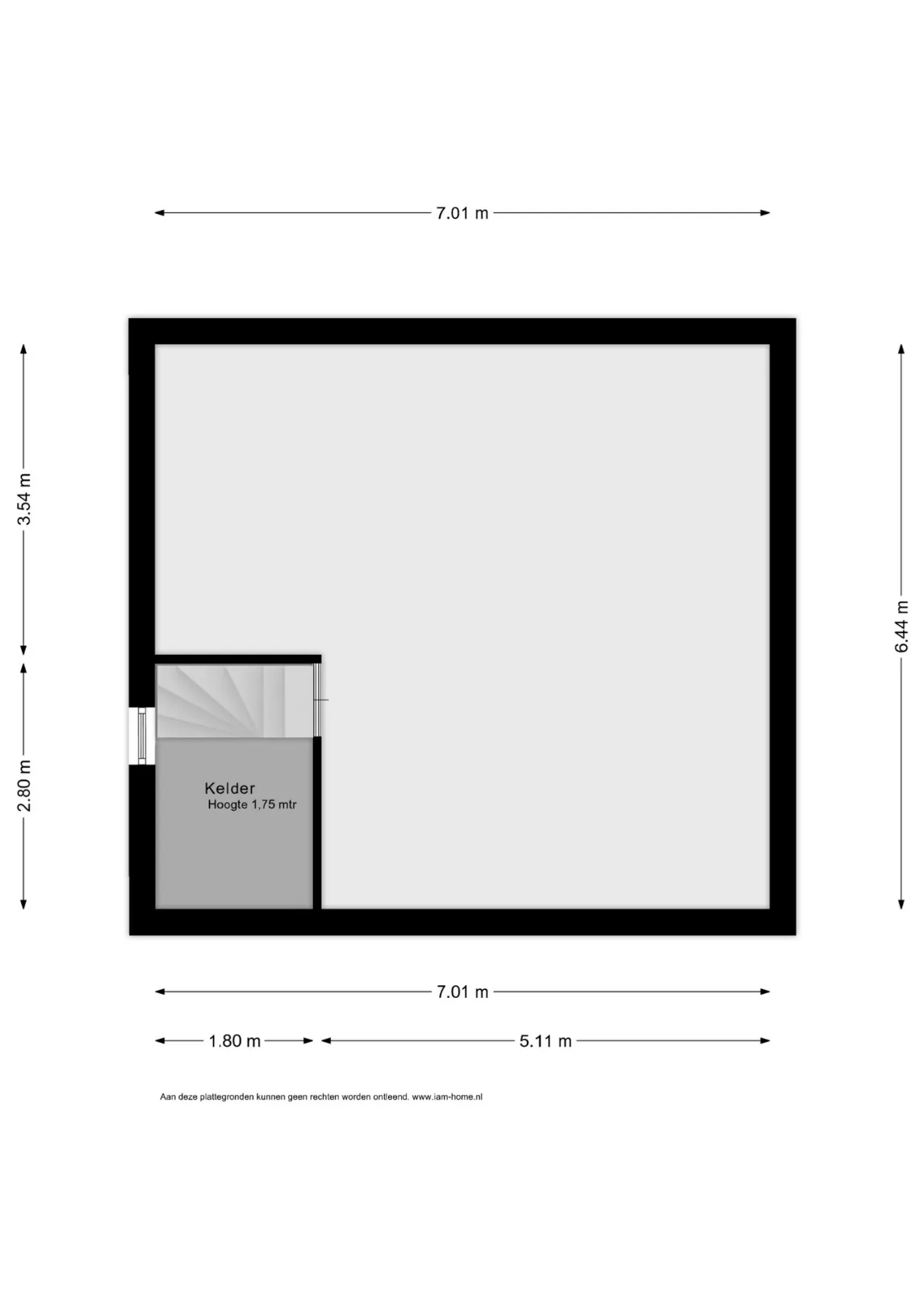
Begane grond
Via de hal/entree, voorzien van de meterkast (6 groepen met aardlekschakelaar en krachtstroom) en de trapopgang naar de eerste verdieping, betreedt u de woning. Vanuit de hal heeft u toegang tot de leefkeuken. In de keuken bevindt zich tevens de ingang naar een ruime, droge kelder met ontluchting. De keuken is uitgerust met een 1,5 RVS spoelbak, 4-pits gasstel, afzuigkap, oven en beschikt over voldoende kastruimte.

Vanuit de keuken is de woonkamer bereikbaar. Deze doorzonkamer heeft een prettige lichtinval, goede natuurlijke ventilatie en is voorzien van een open haard, wat zorgt voor extra sfeer.

Aangrenzend aan de keuken bevindt zich de bijkeuken met een separate technische ruimte waar de cv-installatie is geplaatst (Nefit Topline Compact HRC 30/CW5, bouwjaar 2011). In de bijkeuken zijn tevens de aansluitingen voor wasmachine en droger aanwezig. Hier bevinden zich ook de badkamer met douche en vaste wastafel en een separaat toilet. Alle ruimtes in de bijkeuken beschikken over natuurlijke lichtinval en ventilatie.

Via de oorspronkelijke achterdeur bereikt u de serre/uitbouw. Deze ruimte is voorzien van verwarming en kan worden gezien als een verlengstuk van de woonkamer. Vanuit de serre is er directe toegang tot de achtertuin.

Eerste verdieping
Via een vaste open trap komt u op de overloop van de eerste verdieping. Hier bevinden zich vier slaapkamers, allen voorzien van natuurlijk licht en ventilatie. Drie van de slaapkamers beschikken over een inbouwkast. Eén van deze slaapkamers is daarnaast uitgerust met een vaste wastafel en een balkondeur met toegang tot het platte dak van de aanbouw.

Tweede verdieping
Vanaf de overloop van de eerste verdieping is via een vlizotrap de ruime bergzolder bereikbaar.

Buitengebeuren
De volledig omheinde achtertuin beschikt over een afsluitbare poort met vrije achterom tussen de woning en de garage. De tuin is aangelegd met sierbestrating, gazon en vaste beplanting. Achter op het perceel staat een ruime, vrijstaande garage, uitgevoerd in enkel steens met grote openslaande houten deuren en voorzien van krachtstroom.

Via de afsluitbare poort komt u op de brede oprit die aansluit op de openbare weg. Deze oprit is voorzien van sierbestrating en biedt plaats aan circa vier personenauto’s. Naast de garage en oprit bevindt zich een circa vier meter brede strook grond over de volledige lengte van het perceel, ingericht als siertuin met gazon, vaste planten en bomen.

De voortuin is afgezet met een taxushaag en aangelegd met gazon en vaste beplanting.

Algemeen:
Bouwjaar 1965
Dubbele beglazing en enkelglas in de gehele woning.
Dakpannen zijn vervangen (hardgebakken dakpannen).
Houtonderschoten kap (GEEN ASBEST).
1e verdiepingsvloer beton, 2e verdiepingsvloer hout.
Grondwaterput aanwezig.
Glasvezel aanwezig.
Energielabel “E”.
Zuid-West gelegen achtertuin.
Het betreft een degelijk gebouwd woonhuis met mogelijkheden op een mooie locatie en een dito kavelgrootte.


Kenmerken

Algemeen

Adres:Bergeijk
Vraagprijs:€ 449.000 k.k.
Type:Eengezinswoning
Beschikbaar vanaf:In overleg
Ligging:Vrij uitzicht, In woonwijk
Perceeloppervlakte:460 m²
Perceelbreedte:14 m
Perceeldiepte:24 m
Bebouwde opp.:123 m²
Totale woonoppervlakte:123 m²
Type constructie:Traditioneel
Bouwjaar:1965
Inhoud:340 m³
Gevelbreedte:7,5 m
Bouwlagen:3
Overige inpandige ruimte:17 m²
Externe Bergruimte :41 m²
Algemene staat:Normaal

Indeling

Kamers:8
Slaapkamers:4
Badkamers:1
WC:1
Woonkamer:20 m², Woonkamer
Keuken:5 m², Dichte keuken, Ingericht met inbouwapparatuur
Kelder:Ja
Tuin:120 m²
Tuin breedte:10 m
Tuin diepte:12 m
Tuin oriëntatie:Zuid-West
Tuin kwaliteit:Verzorgd
Garage:2 plaatsen
Garage Oppervlakte:30 m²
Parking:2
Parking Types:Op eigen terrein

Comfort

Raamwerk:Hout
Dak:Zadeldak
Beglazing:Enkel
Verwarming:CV-ketel
Verwarming bouwjaar:2011
Verwarmd water:Combiketel

Kadastrale gegevens

Kad. gemeente:Bergeijk
Oppervlakte:460 m²

Informatieplicht

Energielabel:E
Geldig tot:2-12-2035

Ligging

Neem vrijblijvend contact op

Wenst u meer informatie of het pand te bezoeken? Contacteer ons vrijblijvend voor meer informatie. 
Wanneer wij uw aanvraag hebben ontvangen zullen wij verder contact met u opnemen. 


U moet akkoord gaan met het privacybeleid van deze website
* Verplicht in te vullen
Voor meer informatie kunt u mailen naar Vosters Onroerend Goed BV, info@vostersonroerendgoed.nl, of bellen met Jan Willems, 0653146364 . Aan onvolkomenheden in tekst en inhoud kunnen geen rechten worden ontleend. Alle aanbiedingen zijn vrijblijvend.
 
Niet gevonden wat u zocht? Schrijf u dan vrijblijvend in om op de hoogte te blijven van ons recentste aanbod.
Schrijf u in
U gebruikt een verouderde browser. Upgrade nu naar een moderne browser om ten volle gebruik te kunnen maken van alle functies van onze site:
Chrome |  FireFox |  Opera |  Safari |  Microsoft Edge
Terug naar boven
Sluit menu Vosters Onroerend Goed BV
Wat is mijn huis waard?
Ontvang binnen twee werkdagen een gratis waardebepaling!