Leemskuilen 23, 5531 NK Bladel
Vraagprijs: € 540.000 k.k.

Brochure

Omschrijving

Uitgebouwde vrijstaande woning met berging gelegen op een perceel van 561 m2.

Deze vrijstaande woning is door de jaren heen fors uitgebouwd en prima onderhouden. Zo beschikt de woning over gedeeltelijk kunststof kozijnen en vloerverwarming op de begane grond. In 2003 is het dak vervangen. De woning beschikt over veel parkeerruimte en is te betreden via een fraaie elektrische poort. De woning is rustig gelegen aan het industrieterrein van Bladel, op korte afstand van het centrum en van het industrieterrein. De woning beschikt over 4 royale slaapkamers op de eerste verdieping.

Kenmerken:
• Woonoppervlakte 153 m2
• Gebruiksoppervlakte totaal (incl. bijgebouwen) 183 m2
• Inhoud 575 m3
• Bouwjaar 1963
• Ligging: op korte afstand van centrum
• Aanvaarding: ca. eind januari 2026
• Bijgebouwen/voorzieningen:
o Uitbouw begane grond en eerste verdieping
o Inrit met plaats voor meerdere auto’s
o Inpandig bereikbare garage c.q. berging
o Overkapping
• Duurzaam:
o Volledig voorzien van vloerisolatie
o Gedeeltelijk voorzien van spouwmuurisolatie
o Volledig voorzien van dakisolatie
o Dubbelzijdige beglazing in kunststof en houten kozijnen
o Verwarming en warm water middels HR-combiketel (Remeha 2024)
o Vloerverwarming op de begane grond (m.u.v. keuken)
o Energielabel D

Indeling
Bij binnenkomst in de woning betreedt u de hal/entree, waar zich de trapopgang bevindt naar de verdieping. In de hal treft u tevens de meterkast aan, voorzien van 8 groepen en krachtstroom.
Vanuit de hal komt u in de leefkeuken, een royale ruimte met een praktische hoekopstelling en volop kastruimte. De keuken is uitgerust met diverse inbouwapparatuur, waaronder een inductiekookplaat, vaatwasser, combi-oven, koelkast en een Quooker. Vanuit de keuken heeft u toegang tot een ruime kelder, ideaal voor extra opslag.

Aansluitend aan de keuken bevindt zich de doorzonwoonkamer, een lichte en sfeervolle ruimte dankzij de grote raampartijen. De woonkamer is voorzien van een sierschouw (niet in gebruik) schoonmetselwerkwanden en granolafwerking.

Terug in de keuken leidt een doorgang naar een multifunctionele ruimte. Deze ruimte is uitermate geschikt als speelkamer, kantoor of zelfs als slaapkamer op de begane grond. Dankzij de openslaande tuindeuren staat deze kamer in directe verbinding met de achtertuin.

Vanuit deze ruimte komt u in een portaal dat toegang biedt tot de garage/berging, bijkeuken en het toilet. De garage/berging is opvallend breed, beschikt over een pantry, gasboiler en heeft openslaande deuren richting de inrit. Ook is hier een grondwaterpomp aanwezig. De bijkeuken is volledig betegeld en ingericht met aansluitingen voor witgoedapparatuur. Tot slot is er een hangend toilet met fonteintje en natuurlijke ventilatie.

Eerste verdieping
Dankzij de uitbouw, die is doorgetrokken tot aan de eerste verdieping, biedt deze woonlaag opvallend veel ruimte. U vindt hier vier volwaardige slaapkamers, elk met een prettig formaat. Twee van de kamers beschikken over vaste kasten, wat extra opbergruimte oplevert. Bovendien zijn diverse slaapkamers voorzien van rolluiken. Naast de slaapkamers is er nog een extra tussenruimte met een vaste trap naar de zolderverdieping. Deze ruimte is ideaal te gebruiken als kastenkamer of als extra berging.

De badkamer is eveneens ruim opgezet en uitgerust met een ligbad-douchecombinatie, een toilet en een badkamermeubel. Hoewel de afwerking enigszins gedateerd is, biedt de badkamer volop mogelijkheden voor modernisering dankzij het royale oppervlak.

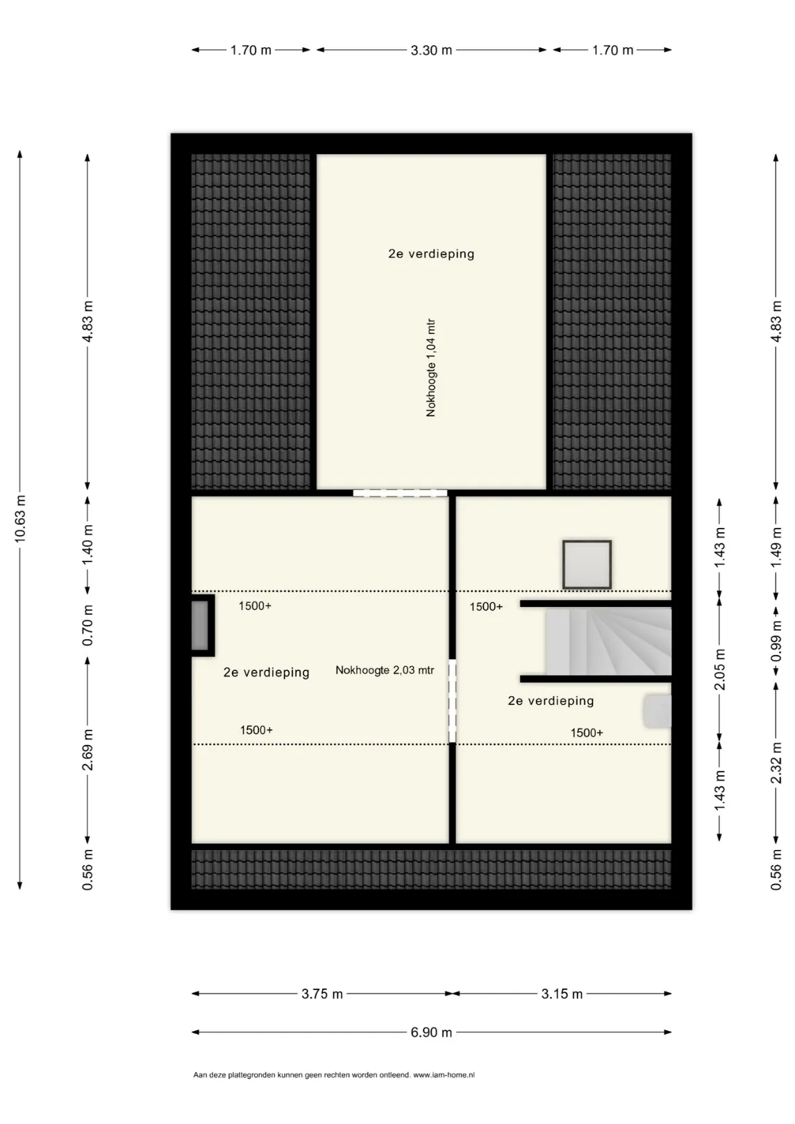
Tweede verdieping
De tweede verdieping is bereikbaar via een vaste trap en vormt een royale zolderruimte met dakraam. Hier bevindt zich de opstelling van de cv-installatie. De zolder is momenteel nog af te werken, maar biedt volop potentie om in te richten als extra slaapkamer, hobbyruimte of thuiswerkplek.

Buitenruimte
De woning is omgeven door een ruime buitenruimte, wat zorgt voor een prettig gevoel van vrijheid en privacy. Aan de voorzijde bevindt zich een royale voortuin met gazon en beplanting. De ruime inrit biedt voldoende parkeergelegenheid voor meerdere auto’s op eigen terrein.
Via een brede poort aan de zijkant van de woning is er een vrije achterom naar de achtertuin. Deze achtertuin is volledig verhard, wat zorgt voor een onderhoudsvrije buitenruimte. Daarnaast is de tuin uitgerust met een overkapping, een zonneluifel, een drainagegoot en een buitenkraan (aangesloten op grondwaterpomp).


Kenmerken

Algemeen

Adres:Bladel
Vraagprijs:€ 540.000 k.k.
Type:Eengezinswoning
Beschikbaar vanaf:In overleg
Ligging:Aan rustige weg, Gemeente
Perceeloppervlakte:561 m²
Perceelbreedte:15 m
Perceeldiepte:41 m
Bebouwde opp.:100 m²
Totale woonoppervlakte:153 m²
Type constructie:Traditioneel
Bouwjaar:1963
Inhoud:575 m³
Gevelbreedte:7,5 m
Bouwlagen:3
Overige inpandige ruimte:25 m²
Gebouwgebonden buitenruimte:5 m²
Algemene staat:Normaal

Indeling

Kamers:6
Slaapkamers:4
Badkamers:1
WC:2
Woonkamer:33 m², Doorzonkamer
Keuken:9 m², Woonkeuken, Ingericht met inbouwapparatuur
Berging:11 m²
Zolder:14 m²
Terras:110 m²
Wasplaats:4 m²
Tuin:550 m²
Tuin breedte:15 m
Tuin diepte:41 m
Tuin oriëntatie:West
Tuin kwaliteit:Normaal
Garage Types:Parkeerplaats
Parking:3
Parking Types:Op eigen terrein

Comfort

Winkel:Ja - op 500 m tot 1000 m
School:Ja - op 1000 m tot 1500 m
Kinderopvang:Ja - op 1000 m tot 1500 m
Bank:Ja - op 500 m tot 1000 m
Ontspanning:Ja - op minder dan 500 m
Restaurant:Ja - op 500 m tot 1000 m
Raamwerk:Hardhout, Kunststof
Dak:Zadeldak
Beglazing:Dubbel
Verwarming:CV-ketel
Verwarming bouwjaar:2024
Verwarmd water:Gasboiler eigendom, Combiketel
Isolatie:Dakisolatie, Muurisolatie, Vloerisolatie

Kadastrale gegevens

Kad. gemeente:Bladel, Bladel
Oppervlakte:449 m², 112 m²

Informatieplicht

Energielabel:D
Geldig tot:26-6-2035

Ligging

Neem vrijblijvend contact op

Wenst u meer informatie of het pand te bezoeken? Contacteer ons vrijblijvend voor meer informatie. 
Wanneer wij uw aanvraag hebben ontvangen zullen wij verder contact met u opnemen. 


U moet akkoord gaan met het privacybeleid van deze website
* Verplicht in te vullen
Voor meer informatie kunt u mailen naar Vosters Onroerend Goed BV, info@vostersonroerendgoed.nl, of bellen met Dennis van Driel, 0614207657 . Aan onvolkomenheden in tekst en inhoud kunnen geen rechten worden ontleend. Alle aanbiedingen zijn vrijblijvend.
 
Niet gevonden wat u zocht? Schrijf u dan vrijblijvend in om op de hoogte te blijven van ons recentste aanbod.
Schrijf u in
U gebruikt een verouderde browser. Upgrade nu naar een moderne browser om ten volle gebruik te kunnen maken van alle functies van onze site:
Chrome |  FireFox |  Opera |  Safari |  Microsoft Edge
Terug naar boven
Sluit menu Vosters Onroerend Goed BV
Wat is mijn huis waard?
Ontvang binnen twee werkdagen een gratis waardebepaling!