Biezeveld 7, 5531 BX Bladel
Vraagprijs: € 699.000 k.k.

Brochure

Omschrijving

Vrijstaande degelijk gebouwde woning met inpandige dubbele garage.

De woning is gelegen aan Biezenveld 7 in Bladel op een rustige locatie met vrij uitzicht over een grasveld. Het betreft een degelijk gebouwde vrijstaande woning uit 1991 met inpandige dubbele garage en alle voorzieningen op de begane grond. Het perceel heeft een oppervlakte van 512 m².

Indeling

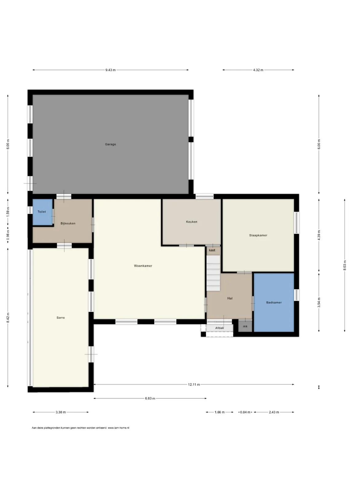
Begane grond
Entree met travertinvloer, garderobenis en toegang tot de meterkast, woonkamer, slaapkamer en badkamer.
De woonkamer is ruim, heeft veel lichtinval en beschikt over kunststof kozijnen met dubbele beglazing en een airco. Aansluitend bevindt zich de gesloten keuken in hoekopstelling met diverse inbouwapparatuur en een trapkast.
De slaapkamer op de begane grond is ruim, voorzien van een inbouwkast en airco. De badkamer is volledig betegeld en uitgerust met twee douches, een toilet en een wastafelmeubel.
Aan de achterzijde bevindt zich een ruime tuinkamer met schuifwand en horren, aansluitend de bijkeuken met wasmachineaansluiting en extra toilet. Vanuit de bijkeuken is de inpandige dubbele garage bereikbaar, voorzien van twee automatische overheaddeuren, cv-installatie (Remeha Calentha) en een stortbak.

Eerste verdieping
Overloop met traplift. Ruime slaapkamer en twee multifunctionele kamers die in gebruik kunnen worden genomen als kantoor- of hobbyruimte, eventueel in te richten als extra slaapkamers. Tevens bevindt zich op deze verdieping een toiletruimte met wastafel.

Tweede verdieping
Via vlizotrap bereikbare zolderruimte geschikt voor berging.

Buitenruimte
De voortuin is onderhoudsvriendelijk aangelegd met grind en beplanting. De oprit biedt plaats voor circa vier voertuigen. De achtertuin is ingericht met kunstgras, een border en erfafscheidingen.

Kenmerken
• Bouwjaar: 1991
• Perceeloppervlakte: 512 m²
• Woonoppervlakte en gebruiksoppervlakte: 236 m² / 306 m²
• Moderne meterkast
• Kunststof kozijnen met dubbele beglazing
• Meeste ramen voorzien van verduistering
• 3x airco aanwezig
• Cv-installatie: Remeha Calentha
• Alle voorzieningen op de begane grond aanwezig
• Inpandige dubbele garage met twee automatische deuren
• Ruime tuinkamer
• Royale oprit voor ca. 4 voertuigen
• Energielabel B


Kenmerken

Algemeen

Adres:Bladel
Vraagprijs:€ 699.000 k.k.
Type:Eengezinswoning
Beschikbaar vanaf:In overleg
Ligging:Gemeente
Perceeloppervlakte:512 m²
Perceelbreedte:18 m
Perceeldiepte:28 m
Bebouwde opp.:187 m²
Totale woonoppervlakte:236 m²
Type constructie:Traditioneel
Bouwjaar:1991
Inhoud:960 m³
Gevelbreedte:15 m
Bouwlagen:2
Overige inpandige ruimte:69 m²
Gebouwgebonden buitenruimte:2 m²
Algemene staat:Normaal

Indeling

Kamers:6
Slaapkamers:4
Badkamers:1
WC:2
Woonkamer:, L-kamer
Keuken:, Dichte keuken, Ingericht met inbouwapparatuur
Tuin:325 m²
Tuin breedte:18 m
Tuin diepte:10 m
Tuin oriëntatie:Noord
Tuin kwaliteit:Normaal
Garage:1 (2 plaatsen)
Garage Oppervlakte:56 m²
Garage Types:Inpandig
Garage uitrusting:Verwarming
Parking:4
Parking Types:Op eigen terrein

Comfort

Ontspanning:Ja - op minder dan 500 m
Raamwerk:Kunststof
Dak:Zadeldak
Beglazing:Dubbel
Verwarming:CV-ketel
Isolatie:Dakisolatie, Vloerisolatie
Airco:Ja

Kadastrale gegevens

Kad. gemeente:Bladel
Oppervlakte:513 m²

Informatieplicht

Energielabel:B
Geldig tot:6-9-2035

Ligging

Neem vrijblijvend contact op

Wenst u meer informatie of het pand te bezoeken? Contacteer ons vrijblijvend voor meer informatie. 
Wanneer wij uw aanvraag hebben ontvangen zullen wij verder contact met u opnemen. 


U moet akkoord gaan met het privacybeleid van deze website
* Verplicht in te vullen
Voor meer informatie kunt u mailen naar Vosters Onroerend Goed BV, info@vostersonroerendgoed.nl, of bellen met Wilfred Oostenbrink, 0622855129 . Aan onvolkomenheden in tekst en inhoud kunnen geen rechten worden ontleend. Alle aanbiedingen zijn vrijblijvend.
 
Niet gevonden wat u zocht? Schrijf u dan vrijblijvend in om op de hoogte te blijven van ons recentste aanbod.
Schrijf u in
U gebruikt een verouderde browser. Upgrade nu naar een moderne browser om ten volle gebruik te kunnen maken van alle functies van onze site:
Chrome |  FireFox |  Opera |  Safari |  Microsoft Edge
Terug naar boven
Sluit menu Vosters Onroerend Goed BV
Wat is mijn huis waard?
Ontvang binnen twee werkdagen een gratis waardebepaling!