Diederik van Altenastraat 9, 5095 AP Hooge Mierde
Vraagprijs: € 525.000 k.k.

Brochure

Omschrijving

Degelijke vrijstaande woning met groot bijgebouw gelegen op een hoekperceel in Hooge Mierde.

Deze degelijk gebouwde en uitstekend onderhouden vrijstaande woning is gelegen op een rustige en gewilde locatie in Hooge Mierde. Hier geniet je van ruimte, comfort en privacy op een mooi hoekperceel. De woning biedt een ruime woonkamer, drie slaapkamers (met de mogelijkheid voor een vierde), een praktische bijkeuken en een kantoor op de begane grond, ideaal voor thuiswerken of een hobbyruimte. Het grote bijgebouw en de fraaie tuin rondom maken het geheel compleet. Een heerlijke plek voor wie rustig wil wonen, maar toch dichtbij alle voorzieningen wil blijven. Kortom: een ruime gezinswoning met veel mogelijkheden en een prettige ligging!

Kenmerken:
• Bouwjaar 1976
• Woonoppervlakte 143 m2
• Gebruiksoppervlakte totaal (incl. bijgebouwen etc.) 234 m2
• Inhoud ca. 560 m3
• Perceeloppervlakte 445 m2
• Ligging: in rustige straat in Hooge Mierde aan een brede straat met groen, nabij basisschool en sportvoorzieningen.
• Veel rolluiken c.q. screens aanwezig in de woning
• Voorzieningen:
o Grote garage
o Overkapping
o Lange inrit
o Tuinhuis
• Duurzaam:
o Volledig isolatiepakket (vloer, muur, dak)
o Hardhouten kozijnen met dubbelzijdige/HR++ beglazing
o 10 stuks zonnepanelen (2023)
o Verwarming en warm water middels HR-combiketel van Nefit (2010)
o Energielabel C (uit 2022, hierin zijn de zonnepanelen niet meegenomen)

Indeling
Begane grond
Via de royale hal met vide en fraaie wenteltrap betreedt u de woning. Vanuit de hal heeft u toegang tot het toilet, het kantoor, de meterkast en de woonkamer. De toiletruimte is volledig betegeld en voorzien van een hangend toilet en fonteintje. Het kantoor beschikt over een vaste schuifkast en is ideaal als werk-, speel- of extra slaapkamer. De recent vernieuwde meterkast is modern afgewerkt en voorzien van maar liefst 12 groepen.

De L-vormige woonkamer is ruim opgezet en heeft grote raampartijen die zorgen voor veel lichtinval en een mooi uitzicht op de tuin. De ruimte is sfeervol afgewerkt met een tegelvloer, schoonmetselwerk, stucwerk en een houten plafond, en beschikt over een gezellige schouw. Aansluitend bevindt zich de dichte woonkeuken, uitgevoerd in hoogwaardige kwaliteit met massief houten fronten, een granieten werkblad en diverse inbouwapparatuur, waaronder een vaatwasser op hoogte, koelkast, oven, 4-pits gasstel en afzuigkap. Vanuit de keuken bereikt u de praktische bijkeuken met witgoedaansluitingen, inbouwkast en toegang tot de achtertuin.

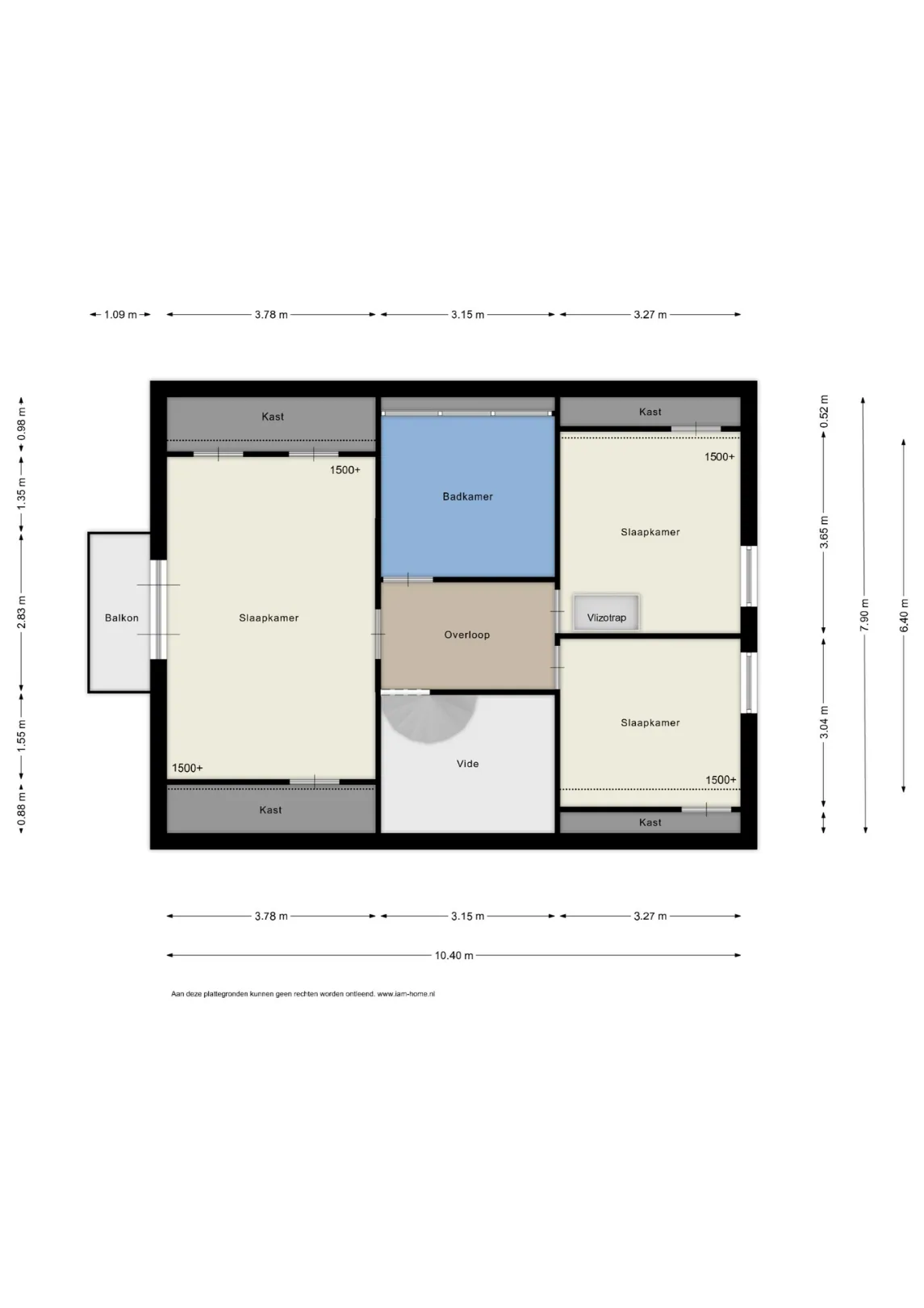
Eerste verdieping
De overloop geeft toegang tot drie slaapkamers en de badkamer. De royale ouderslaapkamer beschikt over vaste kasten, een balkon en directe toegang tot de badkamer. Indien gewenst kan deze kamer eenvoudig worden gesplitst in twee volwaardige kamers. De badkamer is ruim van opzet, mede dankzij de dakkapel, en uitgerust met een ligbad, douchecabine, wastafel, toilet en bidet. De overige twee slaapkamers zijn eveneens ruim, voorzien van inbouwkasten en rolluiken. Eén van de kamers heeft een massief eikenhouten vloer en een vlizotrap naar de tweede verdieping.

Tweede verdieping
Grote, stahoge bergzolder met opstelling van de Cv-installatie (Nefit, 2010) en de omvormer voor de zonnepanelen.

Buitenruimte
Rondom de woning ligt een verzorgde tuin met voortuin, ruime oprit en een afsluitbare poort naar de overkapping waar u heerlijk buiten kunt zitten. De zonnige achtertuin, gelegen op het zuidwesten, is ingericht met gras, borders, sierbestrating en vaste beplanting. Verder is er een overkapping voor houtopslag en kliko’s, een tuinhuis en een grote, verwarmde garage met elektrische, geïsoleerde deur en wateraansluiting.


Kenmerken

Algemeen

Adres:Hooge Mierde
Vraagprijs:Verkocht | onder voorbehoud
Type:Eengezinswoning
Beschikbaar vanaf:In overleg
Ligging:In woonwijk, Aan rustige weg
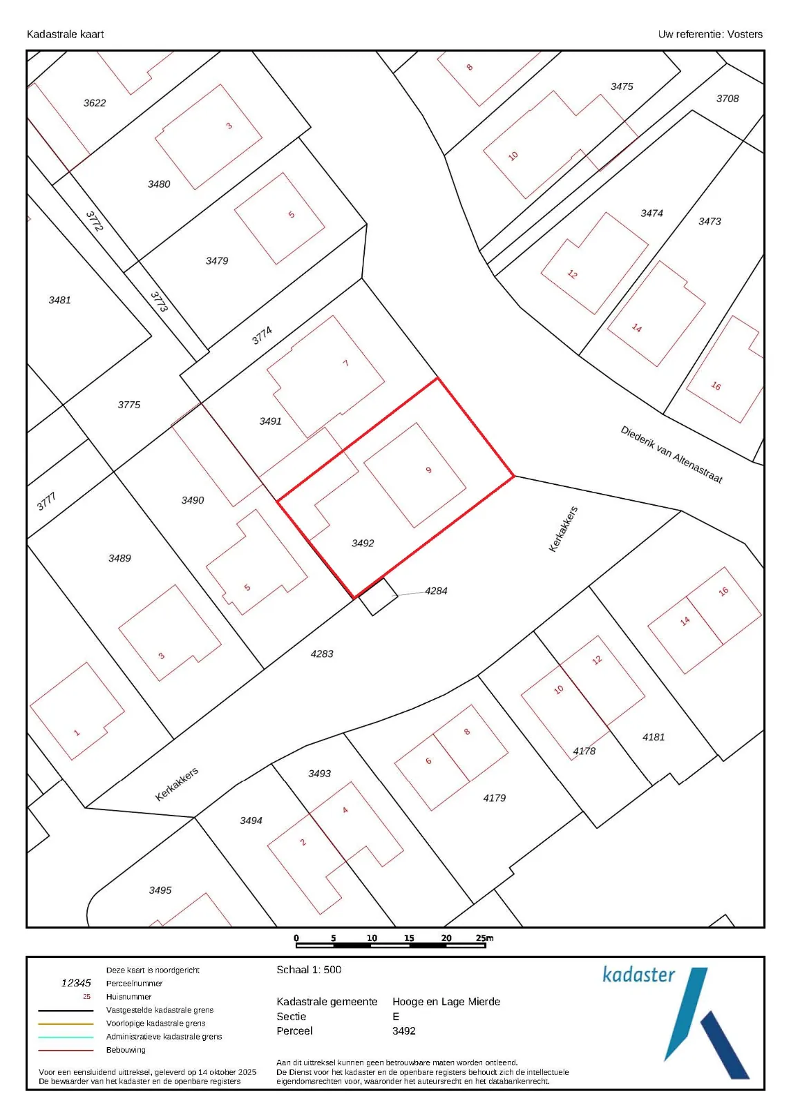
Perceeloppervlakte:445 m²
Perceelbreedte:16 m
Perceeldiepte:26 m
Bebouwde opp.:153 m²
Totale woonoppervlakte:143 m²
Type constructie:Traditioneel
Bouwjaar:1977
Inhoud:560 m³
Gevelbreedte:11 m
Bouwlagen:3
Overige inpandige ruimte:17 m²
Gebouwgebonden buitenruimte:35 m²
Externe Bergruimte :39 m²
Algemene staat:Normaal

Indeling

Kamers:5
Slaapkamers:3
Badkamers:1
WC:2
Bureau:5
Woonkamer:40 m², Woonkamer
Keuken:7 m², Dichte keuken, Ingericht met inbouwapparatuur
Bijkeuken:5 m²
Berging:12 m²
Zolder:16 m²
Balkon:4 m²
Tuin:300 m²
Tuin breedte:16 m
Tuin diepte:26 m
Tuin oriëntatie:Zuid-West
Tuin kwaliteit:Normaal
Garage:1 plaats
Garage Oppervlakte:34 m²
Garage Types:Vrijstaand steen
Garage uitrusting:Elektrische voorzieningen, Water voorzieningen, Verwarming
Parking:3
Parking Types:Op eigen terrein

Comfort

Raamwerk:Hardhout
Dak:Zadeldak
Beglazing:Dubbel, Hoogrendementsglas
Verwarming:CV-ketel
Verwarming bouwjaar:2010
Verwarmd water:Combiketel
Isolatie:Volledig geïsoleerd
Rolluiken:Ja
Zonnepanelen:Ja

Kadastrale gegevens

Kad. gemeente:Hooge en Lage Mierde
Oppervlakte:445 m²

Informatieplicht

Energielabel:C
Geldig tot:25-8-2032

Ligging

Neem vrijblijvend contact op

Wenst u meer informatie of het pand te bezoeken? Contacteer ons vrijblijvend voor meer informatie. 
Wanneer wij uw aanvraag hebben ontvangen zullen wij verder contact met u opnemen. 


U moet akkoord gaan met het privacybeleid van deze website
* Verplicht in te vullen
Voor meer informatie kunt u mailen naar Vosters Onroerend Goed BV, info@vostersonroerendgoed.nl, of bellen met Dennis van Driel, 0614207657 . Aan onvolkomenheden in tekst en inhoud kunnen geen rechten worden ontleend. Alle aanbiedingen zijn vrijblijvend.
 
Niet gevonden wat u zocht? Schrijf u dan vrijblijvend in om op de hoogte te blijven van ons recentste aanbod.
Schrijf u in
U gebruikt een verouderde browser. Upgrade nu naar een moderne browser om ten volle gebruik te kunnen maken van alle functies van onze site:
Chrome |  FireFox |  Opera |  Safari |  Microsoft Edge
Terug naar boven
Sluit menu Vosters Onroerend Goed BV
Wat is mijn huis waard?
Ontvang binnen twee werkdagen een gratis waardebepaling!