Nieuwbouwwoning Verzetshelden ong., 5528 DB Hoogeloon
Vraagprijs: € 875.000 k.k.

Brochure

Omschrijving

Nieuwbouwwoning gelegen op een perceel van 538 m2.

In een jonge en aantrekkelijke woonwijk aan de Verzetshelden in Hoogeloon wordt deze nieuwbouwwoning met voorlopig energielabel A++++ binnenkort opgeleverd. De bouw is reeds gestart en bevindt zich in een vergevorderd stadium, waardoor u profiteert van de zekerheid van nieuwbouw zonder lange wachttijd. Tegelijkertijd is er nog ruimte voor persoonlijke keuzes: als koper kunt u diverse onderdelen zelf bepalen. De woning wordt afgewerkt opgeleverd, maar exclusief keuken, badkamer en afwerkvloer. Alle aansluitingen zijn al aanwezig, zodat u deze ruimtes volledig naar eigen smaak kunt realiseren. De woning ligt op een ruime kavel van maar liefst 538 m², wat zorgt voor volop mogelijkheden rondom de woning en in de tuin. Een fijne combinatie van modern wonen, ruimte en vrijheid. Zoekt u een gloednieuwe woning op een uitstekende locatie, met een royaal perceel én de mogelijkheid om zelf nog keuzes te maken? Wacht dan niet langer en grijp deze kans.

De woning beschikt over de volgende ruimtes:
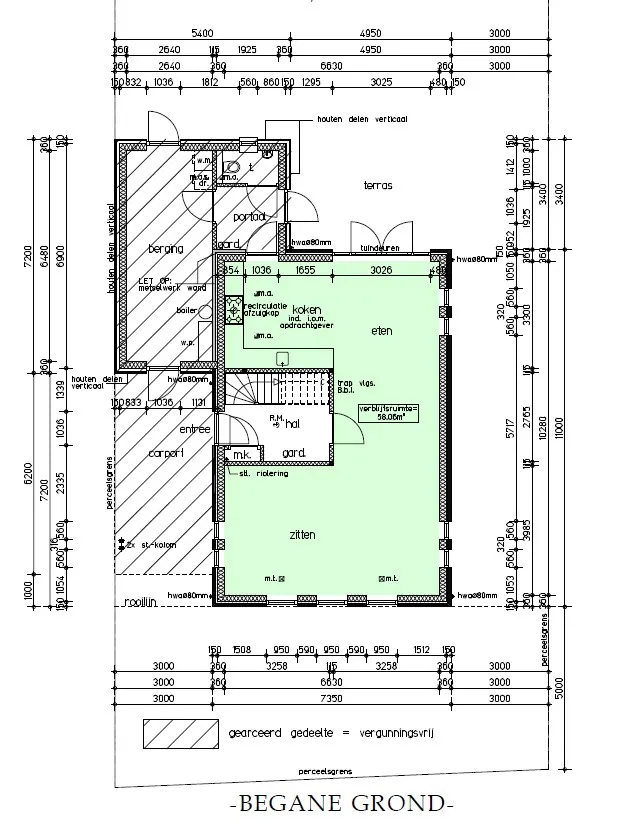
Begane grond
- Hal met garderoberuimte, meterkast, trapopgang en doorgang naar de woonkamer
- U-vormige leefruimte met nog te realiseren keuken aan de achterzijde en tuindeuren naar de achtertuin.
- Portaal met toilet en doorgang naar de berging
- Berging met wasmachine en droger aansluiting, warmtepomp en boiler
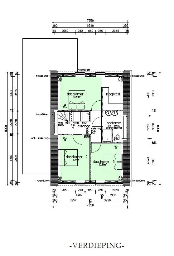
Eerste verdieping
- Overloop met toegang tot 3 slaapkamers, de badkamer en de vaste trap naar de zolder
- 3 grote slaapkamers, met royale ouderslaapkamer met inloopkast
- Nog te realiseren badkamer met dakkapel
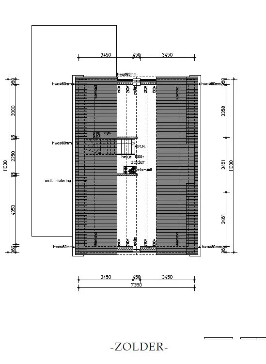
Tweede verdieping
- Hoge, multifunctionele zolder.


Kenmerken

Algemeen

Adres:Hoogeloon
Vraagprijs:€ 875.000/totaal k.k.
Type:Eengezinswoning
Beschikbaar vanaf:In overleg
Ligging:In woonwijk
Perceeloppervlakte:538 m²
Perceelbreedte:13 m
Perceeldiepte:40 m
Totale woonoppervlakte:185 m²
Type constructie:Traditioneel
Bouwjaar:2026
Inhoud:680 m³
Bouwlagen:3
Algemene staat:Direct te aanvaarden

Indeling

Kamers:5
Slaapkamers:3
Badkamers:1
WC:2
Tuin:Ja
Tuin breedte:13 m
Tuin diepte:40 m
Tuin oriëntatie:Zuid-Oost

Comfort

Ontspanning:Ja - op minder dan 500 m
Restaurant:Ja - op minder dan 500 m
Raamwerk:Hout
Dak:Mansardedak
Beglazing:Hoogrendementsglas
Verwarming:Warmtepomp
Verwarmd water:Warmtepomp
Isolatie:Volledig geïsoleerd

Kadastrale gegevens

Kad. gemeente:Hoogeloon
Oppervlakte:538 m²

Informatieplicht

Geldig tot:23-1-2026

Ligging

Neem vrijblijvend contact op

Wenst u meer informatie of het pand te bezoeken? Contacteer ons vrijblijvend voor meer informatie. 
Wanneer wij uw aanvraag hebben ontvangen zullen wij verder contact met u opnemen. 


U moet akkoord gaan met het privacybeleid van deze website
* Verplicht in te vullen
Voor meer informatie kunt u mailen naar Vosters Onroerend Goed BV, info@vostersonroerendgoed.nl, of bellen met Dennis van Driel, 0614207657 . Aan onvolkomenheden in tekst en inhoud kunnen geen rechten worden ontleend. Alle aanbiedingen zijn vrijblijvend.
 
Niet gevonden wat u zocht? Schrijf u dan vrijblijvend in om op de hoogte te blijven van ons recentste aanbod.
Schrijf u in
U gebruikt een verouderde browser. Upgrade nu naar een moderne browser om ten volle gebruik te kunnen maken van alle functies van onze site:
Chrome |  FireFox |  Opera |  Safari |  Microsoft Edge
Terug naar boven
Sluit menu Vosters Onroerend Goed BV
Wat is mijn huis waard?
Ontvang binnen twee werkdagen een gratis waardebepaling!