Het Look 10, 5531 CG Bladel
Vraagprijs: € 268.600 k.k.

Omschrijving

2 bouwkavels te koop voor de bouw van 2 halfvrijstaande levensloopbestendige woningen met vrij uitzicht over landerijen.

Zelfbouwers/aannemers opgelet:

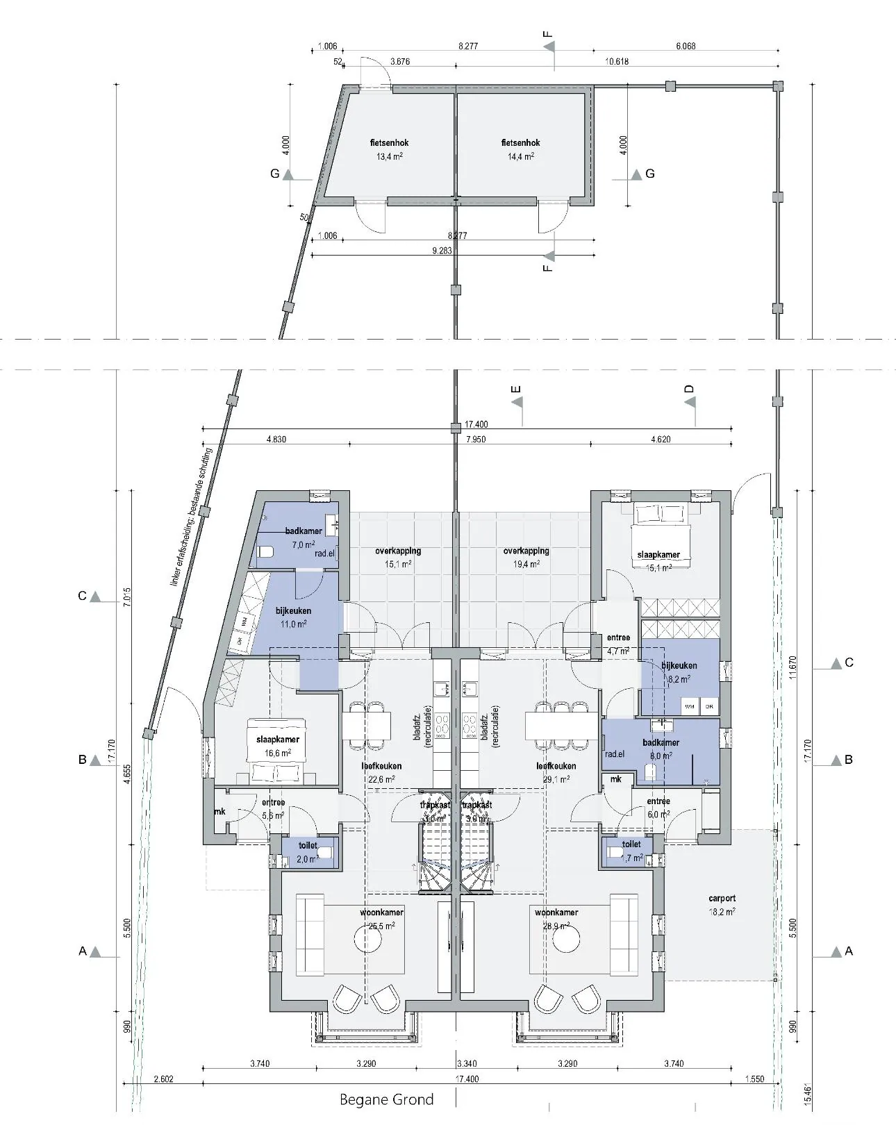
Te Koop 2 bouwkavels voor de bouw van 2 halfvrijstaande levensloopbestendige woningen met baden en slapen op de begane grond. Gelegen op een schitterende locatie met vrij uitzicht over weilanden en landerijen.

Voor deze 2 woningen is reeds een bouwvergunning aanwezig.

Het betreft:
Kavel 1: Het Look 10 Bladel: grootte 427 m2.
Kavel 2: Het Look 10 A Bladel: grootte 527 m2.

Prijs:
Kavel 1: € 268.600,-- KK
Kavel 2: € 331.400,-- KK

Aanvaarding terstond.

Het is ook mogelijk om de 2 kavels samen te kopen en een vrijstaande woning te bouwen. De koop zal doorgang vinden als er of 1 koper is voor het geheel of 2 kopers zijn voor elk een kavel.

Bestemmingsplan is definitief. Er bestaat ook de mogelijkheid om een eigen ontwerp te maken voor de bouw van deze woningen. Bouwhoogte maximaal 9 meter en goothoogte maximaal 3.5 meter. Voor het volledige bestemmingsplan verwijzen wij U naar: https://omgevingswet.overheid.nl/home


Kenmerken

Algemeen

Adres:Bladel
Vraagprijs:Verkocht | onder voorbehoud
Type:Grond
Beschikbaar vanaf:In overleg
Ligging:In woonwijk
Perceeloppervlakte:439 m²
Perceelbreedte:11 m
Perceeldiepte:49 m
Type constructie:Traditioneel

Comfort

Winkel:Ja - op minder dan 500 m
School:Ja - op minder dan 500 m
Kinderopvang:Ja - op minder dan 500 m
Ontspanning:Ja - op minder dan 500 m
Restaurant:Ja - op minder dan 500 m

Kadastrale gegevens

Kad. gemeente:Bladel
Oppervlakte:427 m²

Ligging

Neem vrijblijvend contact op

Wenst u meer informatie of het pand te bezoeken? Contacteer ons vrijblijvend voor meer informatie. 
Wanneer wij uw aanvraag hebben ontvangen zullen wij verder contact met u opnemen. 


U moet akkoord gaan met het privacybeleid van deze website
* Verplicht in te vullen
Niet gevonden wat u zocht? Schrijf u dan vrijblijvend in om op de hoogte te blijven van ons recentste aanbod.
Schrijf u in
U gebruikt een verouderde browser. Upgrade nu naar een moderne browser om ten volle gebruik te kunnen maken van alle functies van onze site:
Chrome |  FireFox |  Opera |  Safari |  Microsoft Edge
Terug naar boven
Sluit menu Vosters Onroerend Goed BV
Wat is mijn huis waard?
Ontvang binnen twee werkdagen een gratis waardebepaling!